Sublime Substantial Landholding | Audrey Road Takapuna, North Shore

Sublime Substantial Landholding | Audrey Road

Elevated in highly sought-after Audrey Road, one of Takapuna's most coveted and tightly held seaward-side streets this property offers a 936sqm (more or less) freehold title zoned 'mixed housing suburban'. This exceptional offering captures breathtaking panoramic views of Rangitoto Island and the Hauraki Gulf. The section is private, basked in sun due to being elevated above the road and well orientated.

Celebrated for its enviable lifestyle and close proximity to the water, this address epitomises the very best of coastal living.
The property offers an incredible opportunity to either remodel the exisiting dwelling, landbank, redevelop the site or build your dream home. What truly sets this property apart is its unparalleled connectivity just a short stroll to Milford Beach and Thorne Bay plus legal pedestrian access via a walkway at the rear of the property providing access to Kitchener Road, where you'll find vibrant cafés, restaurants, and boutique shopping in both Milford and Takapuna.

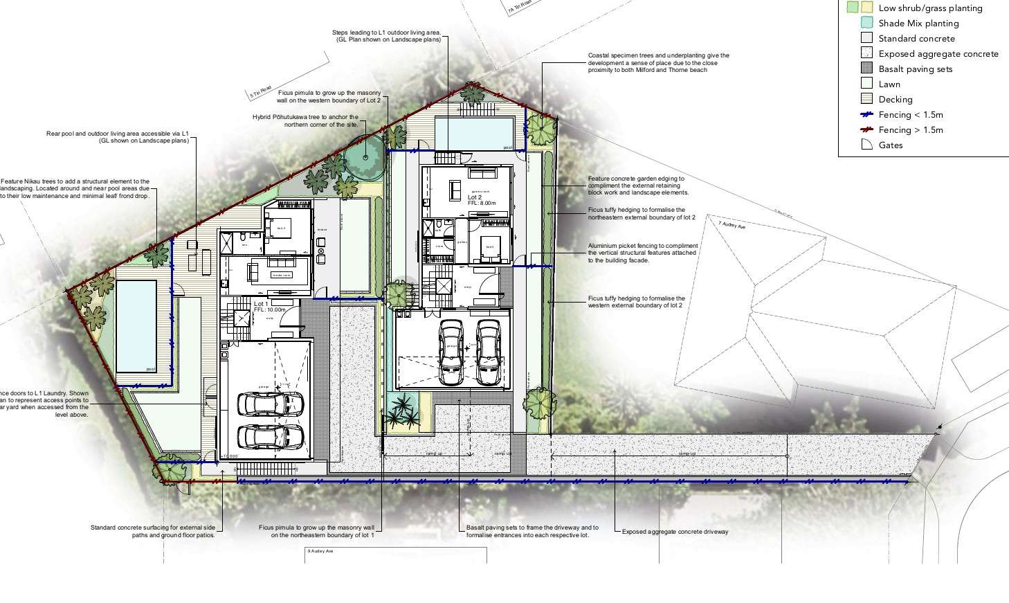
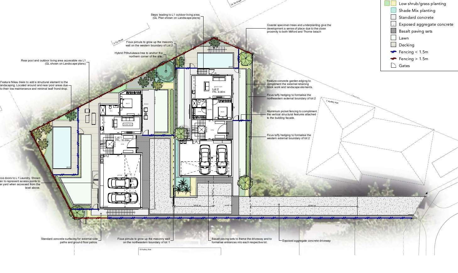
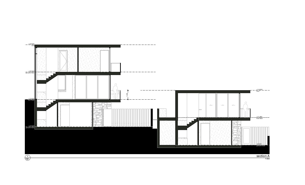
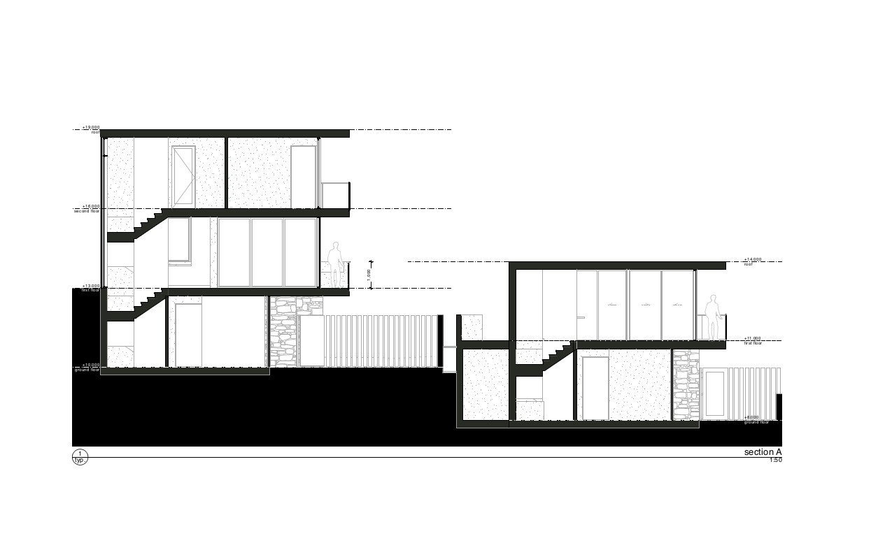
The property is offered with the added advantage of a comprehensive redevelopment concepts, subject to further investigation such as:

Two luxury standalone residences designed by Hulena Architects, each with five bedrooms, multiple living areas, and triple-car garaging.

A boutique apartment development by Monk and Mackenzie Architects, comprising three or more exclusive, low-maintenance coastal residences.

This really is a once in a lifetime opportunity to secure such a large land holding in a prime location that is so tightly held.

Expressions of Interest Close | Thursday 16th December 2025 at 4pm (unless sold prior)

Open Home

Sunday, 9 Nov, 3:30 – 4:00 pm7a Audrey Road, Takapuna, North Shore
80818Expressions of Interest: Tue, 16 Dec, 4:00 pm
unless sold prior
North ShoreTakapunaHouse

Robert Milne

No. 1 Salesperson 2024-2025 | No. 1 Team 2018-2020, 2021-2025 Premium Group NZ
Licensed Real Estate Salesperson
RobertMilne@premium.co.nz

Mobile    022 011 24 94
Office    (+64 9) 916 6000

Richard Milne

No. 1 Salesperson 2012, 2016, 2018-2024 | Premium Group No.1 Sales Team 2018-2025 NZ
Licensed Real Estate Salesperson
themilnes@premium.co.nz

Mobile    021 770 611
Office    (+64 9) 916 6000

Send this Listing to a Friend

Similar Mairangi BayHaurakiBayswater More